
所在區域:澳大利亞
房源面積:35-166㎡
物業類型:公寓(1房-3房)
房源位置:148‐160 King Street
房源價格:¥585萬起|115萬澳元起
裝修情況:精裝
房產產權:永久產權
咨詢熱線:4008-399-299
房源特色:精品公寓
交房時間:2020年第三季度
King & Phillip 坐落于悉尼市中心最悠久的歷史豪宅地段,毗鄰城市綠州海德公園永久公園及圣雅各布教堂的優雅景致。地段享有盛名,周圍環繞著風景優美的綠地,帶給住戶獨特的都市生活。公寓遵照經典的建筑原理精心設計,盡顯現代感和活力感,為這建筑杰作繁多的地段再添色彩。公寓鄰近海德公園營區博物館、新南威爾士州最高法院,位置卓越,能每日縱覽海德公園的迷人風景。
海德公園緊鄰伊麗莎白、利物浦和學院街,一直以來都是悉尼居民的聚集地點,備受旅客的贊賞。
King & Phillip的設計盡顯優美雅致,外部設有用天然木材作內襯的精美砂巖柱廊,令人印象深刻。
公寓大樓為92米高,采用26層布局,其中23層專門作住宅。King & Phillip為住戶提供由青銅色玻璃裝飾的天臺花園。
King & Phillip擁有傳統風格的建筑環境,采用的獨特設計考慮到了黃金比例原則,建筑細節更為其增添色彩。
公寓的外觀由國際著名的澳大利亞建筑公司FJMT操刀設計,室內設計由FJMT Interiors負責。采用奢華代表的家電品牌Gaggenau以及Fisher & Paykel。
停車場、休息室、酒吧
從King & Phillip出發:
步行100米可至海德公園,St James Church,St Mary Cathedral
步行僅2分鐘可至 St James Station










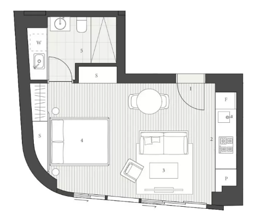
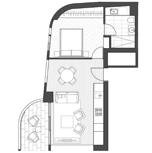
戶型:studio
面積:35㎡
價格:A$1,150,000起

戶型:1室+1衛
面積:57㎡
價格:A$1,720,000起

戶型:2室+2或2.5衛帶車位
面積:86 - 104㎡
價格:A$2,150,000起

戶型:3室+2.5或3衛帶車位
面積:133 - 166㎡
價格:A$3,250,000起
(以上戶型圖及報價僅供參考)
電話:4008-399-299 郵箱:ymgj@univisa.com.cn 聯系我們 網站地圖
本版面設計已工商備案 未經書面授權禁止復制或建立鏡像
? Copyright 2025 永銘國際 www.zhongzousi.com.cn 蜀ICP備12013405號-2